Listing Address:
500 Palm Springs Boulevard, Indian Harbour Beach, FL 32937
Price: $299,000
MLS # 1054789
Property Type: Residential
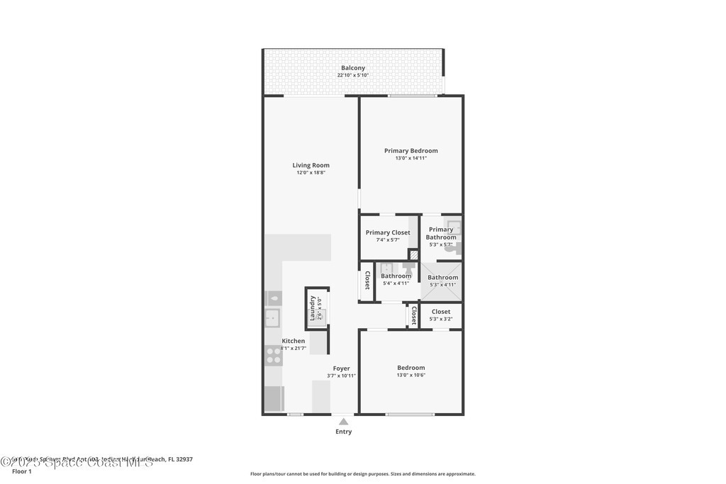
1,055 Total SqFt.
Beds: 2
1,055 Living SqFt.
Baths: 2.00
Year Built: 1980
This property is Closed. Please contact us for similar properties.
Property Description:
Discover coastal living at its best at 500 Palm Springs Boulevard #408, Indian Harbour Beach. This fully remodeled condo is move-in ready and beautifully upgraded with modern finishes throughout. Step inside to find a stylish kitchen featuring quartz countertops, soft-close cabinetry, and all appliances included. The open living and dining areas showcase luxury vinyl plank flooring, creating a warm and inviting atmosphere. Enjoy the convenience of an in-unit washer and dryer and the peace of mind that comes with impact windows. Relax knowing you have your own covered parking spot, and take advantage of the community's impressive amenities -- including basketball, tennis, pickleball, shuffleboard, a sparkling pool, and a clubhouse. Best of all, you're just a short bike ride to the beach, where you can soak up the Florida sunshine every day. This condo perfectly blends comfort, style, and location.
2/17/2026
Sold Price: $250,000
Property Listing Details for 500 Palm Springs Boulevard, Indian Harbour Beach, FL 32937
Exterior Features
Balcony
Interior Features
Breakfast Bar , Built-in Features , Ceiling Fan(s) , Jack and Jill Bath , Open Floorplan , Primary Bathroom - Shower No Tub , Smart Thermostat , Split Bedrooms , Walk-In Closet(s)
Equipment / Appliances
Dishwasher , Disposal , Electric Range , Microwave , Refrigerator , Washer/Dryer Stacked
Pool
Pool Description
Utilities
Cable Available , Electricity Connected , Sewer Connected , Water Connected
Additional Rooms
Bathroom 2 , Kitchen , Living Room , Other Room , Primary Bedroom
Waterfront
No
Parking
Additional Parking , Assigned , Covered , Detached Carport , Parking Lot
Split Floorplan
HOA
HOA Dues
0.00
Construction
Block
Floor
Vinyl
Exterior Finish
Roof Type
Fireplace
0
County
Brevard
Gated Community
Furnishings
Furnished
Home Warranty
Tax Year
2023
Tax Amount
901.84
55+ Community
Subdivision
Listing Status
Closed
Property Status
Home Style
Home View
Pool
Street
500 Palm Springs Boulevard, Indian Harbour Beach, 32937
Zip Code
D. Basile Real Estate, LLC lists and sells Real Estate and Luxury homes in Melbourne Beach, Merritt Island, Cocoa Beach, Lansing Island, Tortoise Island, Barefoot Bay, Cape Canaveral, Cocoa, Grant Valkaria, Indialantic, Indian Harbour Beach, Malabar, Melbourne, Palm Bay, Rockledge, Satellite Beach, Titusville, West Melbourne and surrounding areas in Brevard.
This listing is courtesy of RE/MAX Solutions. Property Listing Data contained within the D Basile Real Estate website is the property of Brevard MLS and is provided for consumers looking to purchase real estate. Any other use is prohibited. We are not responsible for errors and omissions on this web site. All information contained herein should be deemed reliable but not guaranteed, all representations are approximate, and individual verification is recommended.
Quick MLS Search
Choose the Area, City, then Type of the property you're looking for

Share us on your network!