Listing Address:
104 W Osceola Lane, Cocoa Beach, FL 32931
Price: $995,000
MLS # 1053241
Property Type: Residential
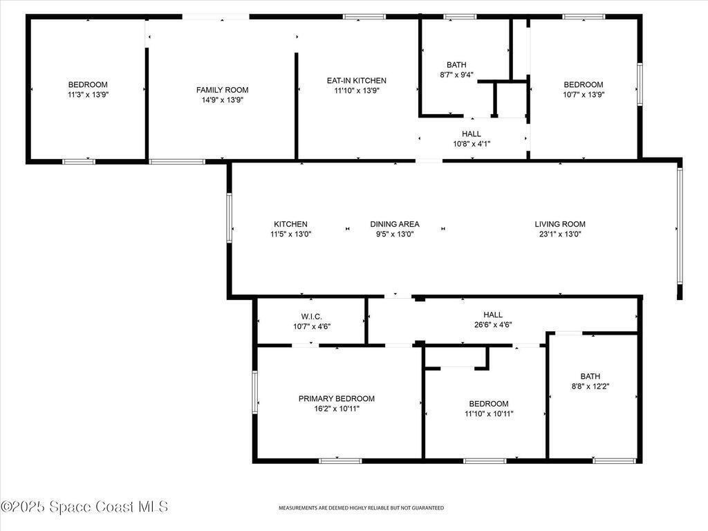
2,216 Total SqFt.
Beds: 4
2,216 Living SqFt.
Baths: 2.00
Year Built: 1955
This property is Active. Please contact us for similar properties.
Property Description:
Live the ultimate Cocoa Beach lifestyle on Florida's beautiful Space Coast! This unique property at 104 W Osceola is just a short walk to the beach and has been thoughtfully converted from a single-family home into a flexible duplex, offering two separate 2 bed/1 bath units--ideal for full-time living with rental income, a vacation home with guest/in-law suite, or multi-generational living.Enjoy peace of mind with a 220-mph rated metal roof and solar panels that produce near $0 electric bills. The home features tile flooring throughout and two beautifully renovated bathrooms with custom walk-in showers--plus a soaking tub in one for added comfort. Located just minutes from the Cocoa Beach Pier, Ron Jon Surf Shop, dining, and entertainment, this home puts you in the heart of coastal living. Whether you're seeking a primary residence, a vacation getaway, or a smart investment, this Cocoa Beach gem checks every box.
Property Listing Details for 104 W Osceola Lane, Cocoa Beach, FL 32931
Exterior Features
Courtyard , Impact Windows , Outdoor Shower
Interior Features
Ceiling Fan(s) , Guest Suite , In-Law Floorplan , Split Bedrooms
Equipment / Appliances
Dishwasher , Dryer , Electric Range , Microwave , Refrigerator , Washer , Washer/Dryer Stacked
Pool
Pool Description
Utilities
Cable Available , Electricity Connected , Sewer Connected , Water Connected
Additional Rooms
None
Waterfront
No
Parking
RV Access/Parking
Split Floorplan
HOA
HOA Dues
0.00
Construction
Block , Concrete
Floor
Tile
Exterior Finish
Roof Type
Metal
Fireplace
0
County
Brevard
Gated Community
Furnishings
Furnished
Home Warranty
Tax Year
2023
Tax Amount
3273.17
55+ Community
Subdivision
Listing Status
Active
Property Status
Home Style
Multi Generational , Ranch
Home View
City
Street
104 W Osceola Lane, Cocoa Beach, 32931
Zip Code
D. Basile Real Estate, LLC lists and sells Real Estate and Luxury homes in Melbourne Beach, Merritt Island, Cocoa Beach, Lansing Island, Tortoise Island, Barefoot Bay, Cape Canaveral, Cocoa, Grant Valkaria, Indialantic, Indian Harbour Beach, Malabar, Melbourne, Palm Bay, Rockledge, Satellite Beach, Titusville, West Melbourne and surrounding areas in Brevard.
This listing is courtesy of Florida East Coast Real Estate. Property Listing Data contained within the D Basile Real Estate website is the property of Brevard MLS and is provided for consumers looking to purchase real estate. Any other use is prohibited. We are not responsible for errors and omissions on this web site. All information contained herein should be deemed reliable but not guaranteed, all representations are approximate, and individual verification is recommended.
Quick MLS Search
Choose the Area, City, then Type of the property you're looking for

Share us on your network!