Listing Address:
484 Lanternback Island Drive, Satellite Beach, FL 32937
Price: $2,155,000
MLS # 1053096
Property Type: Residential
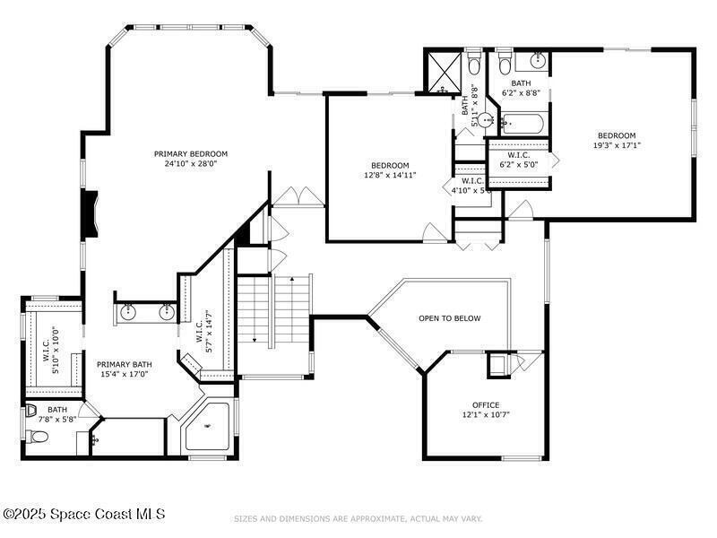
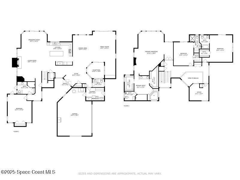
4,913 Total SqFt.
Beds: 5
4,913 Living SqFt.
Baths: 5.00 ½ Baths: 1
Year Built: 1987
This property is Active Under Contract. Please contact us for similar properties.
Property Description:
Experience coastal luxury in the exclusive gated community of Tortoise Island. This stunning waterfront estate sits directly on the Banana River with a private dock and heated saltwater pool--perfect for enjoying Florida's sun-soaked lifestyle. With over 4,900 sq ft of living space, this home features a gourmet kitchen, two fireplaces, a spacious open floor plan, and a downstairs en-suite. Elegant details include travertine floors, tray ceilings, and crown molding. Recent upgrades include a new metal roof (2023), hot water heater (2023), garage door (2022), 2 downstairs HVAC (2023), and upstairs HVAC (2024). Enjoy serene river views from the large, covered patio, ideal for entertaining. Just minutes from the beach, this home is coastal living at its finest. Community amenities include a pool, tennis courts, fitness center, boat dock and slip, and playground. A rare riverfront gem in one of the area's most prestigious neighborhoods.
Property Listing Details for 484 Lanternback Island Drive, Satellite Beach, FL 32937
Exterior Features
Balcony , Boat Lift , Courtyard , Dock
Interior Features
Breakfast Bar , Breakfast Nook , Built-in Features , Ceiling Fan(s) , Central Vacuum , Entrance Foyer , Guest Suite , His and Hers Closets , Kitchen Island , Open Floorplan , Primary Bathroom - Tub with Shower , Vaulted Ceiling(s) , Walk-In Closet(s)
Equipment / Appliances
Convection Oven , Dishwasher , Double Oven , Dryer , Electric Oven , Gas Cooktop , Gas Range , Microwave , Refrigerator , Trash Compactor , Washer
Pool
Pool Description
Gas Heat , In Ground , Salt Water , Screen Enclosure
Utilities
Cable Connected , Electricity Connected , Natural Gas Connected , Sewer Connected , Water Connected
Additional Rooms
None
Waterfront
Yes
Water Type
Parking
Garage , Garage Door Opener , Gated
Split Floorplan
HOA
HOA Dues
0.00
Construction
Frame , Stucco
Floor
Marble , Tile , Wood
Exterior Finish
Roof Type
Metal
Fireplace
0
County
Brevard
Gated Community
Furnishings
Unfurnished
Home Warranty
Tax Year
2023
Tax Amount
14629.90
55+ Community
Subdivision
Listing Status
Active Under Contract
Property Status
Home Style
Home View
Pool , River
Street
484 Lanternback Island Drive, Satellite Beach, 32937
Zip Code
D. Basile Real Estate, LLC lists and sells Real Estate and Luxury homes in Melbourne Beach, Merritt Island, Cocoa Beach, Lansing Island, Tortoise Island, Barefoot Bay, Cape Canaveral, Cocoa, Grant Valkaria, Indialantic, Indian Harbour Beach, Malabar, Melbourne, Palm Bay, Rockledge, Satellite Beach, Titusville, West Melbourne and surrounding areas in Brevard.
This listing is courtesy of Coldwell Banker Realty. Property Listing Data contained within the D Basile Real Estate website is the property of Brevard MLS and is provided for consumers looking to purchase real estate. Any other use is prohibited. We are not responsible for errors and omissions on this web site. All information contained herein should be deemed reliable but not guaranteed, all representations are approximate, and individual verification is recommended.
Quick MLS Search
Choose the Area, City, then Type of the property you're looking for

Share us on your network!