Listing Address:
3745 Indian River Drive, Cocoa, FL 32926
Price: $1,650,000
MLS # 1052536
Property Type: Residential
3,154 Total SqFt.
Beds: 5
3,154 Living SqFt.
Baths: 3.00
Year Built: 1999
This property is Closed. Please contact us for similar properties.
Property Description:
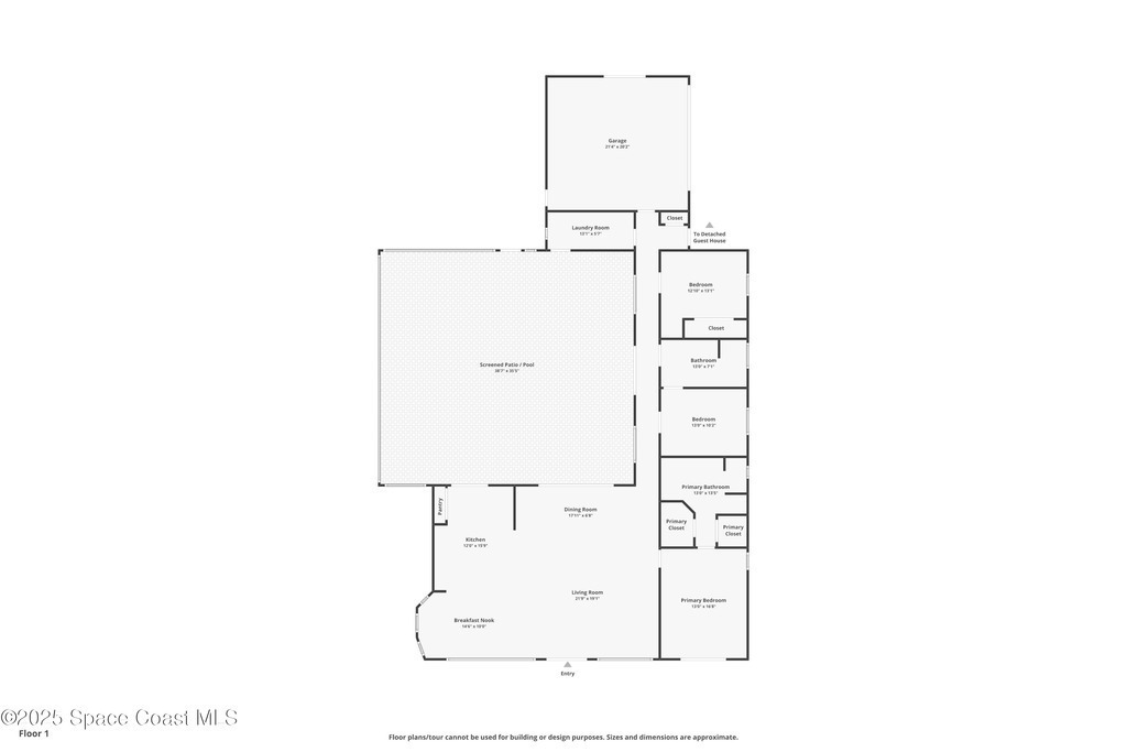
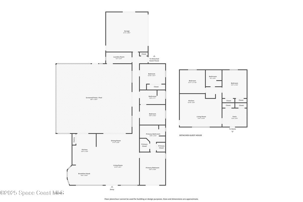
Paradise found on the Intracoastal Waterway! This extraordinary (handicap accessible) home checks all the boxes with a beautiful solar-heated pool (w/handicap lift), outside shower, poolside pergola with paver patio, expansive front porch with cedar ceiling and plantation shutters where you can soak up the river views featuring regular rocket launches and dolphins. The front-of-house primary offers beautiful river views, built-in California Closets(r), dual walk-in closets and a spa-like ensuite bath with soaking tub, larger shower and 2 sink vanity. The property features an attached 2 car attached garage, detached greenhouse and luxurious detached newer 885 SF guest house w/kitchen, screened sitting porch (with river views), RV power outlet and additional parking in the back. The riverside has a newer dock w/boat lift and TIKI hut. Even the dining area and beautiful quartz kitchen offers river views. This home is extraordinary on a larger lot on sought after Indian River Drive
4/07/2026
Sold Price: $1,550,000
Property Listing Details for 3745 Indian River Drive, Cocoa, FL 32926
Exterior Features
Boat Slip , Dock , Outdoor Shower , Storm Shutters
Interior Features
His and Hers Closets
Equipment / Appliances
Dishwasher , Double Oven , Dryer , Electric Range , Refrigerator , Washer
Pool
Pool Description
In Ground , Other , Screen Enclosure , Solar Heat
Utilities
Cable Connected , Electricity Connected , Water Connected
Additional Rooms
None
Waterfront
Yes
Parking
Additional Parking , Garage , Garage Door Opener
Split Floorplan
HOA
HOA Dues
0.00
Construction
Block , Concrete , Stucco
Floor
Stone , Tile , Vinyl
Exterior Finish
Roof Type
Metal
Fireplace
0
County
Brevard
Gated Community
Furnishings
Unfurnished
Home Warranty
Tax Year
2024
Tax Amount
0.00
55+ Community
Subdivision
Listing Status
Closed
Property Status
Home Style
Other
Home View
Intracoastal , Pool , River , Water
Street
3745 Indian River Drive, Cocoa, 32926
Zip Code
D. Basile Real Estate, LLC lists and sells Real Estate and Luxury homes in Melbourne Beach, Merritt Island, Cocoa Beach, Lansing Island, Tortoise Island, Barefoot Bay, Cape Canaveral, Cocoa, Grant Valkaria, Indialantic, Indian Harbour Beach, Malabar, Melbourne, Palm Bay, Rockledge, Satellite Beach, Titusville, West Melbourne and surrounding areas in Brevard.
This listing is courtesy of Atlantic Group Real Estate. Property Listing Data contained within the D Basile Real Estate website is the property of Brevard MLS and is provided for consumers looking to purchase real estate. Any other use is prohibited. We are not responsible for errors and omissions on this web site. All information contained herein should be deemed reliable but not guaranteed, all representations are approximate, and individual verification is recommended.
Quick MLS Search
Choose the Area, City, then Type of the property you're looking for

Share us on your network!