Listing Address:
1268 N Harbor City Boulevard, Melbourne, FL 32935
Price: $1,750
MLS # 1051365
Property Type: Commercial
This property is Closed. Please contact us for similar properties.
Property Description:
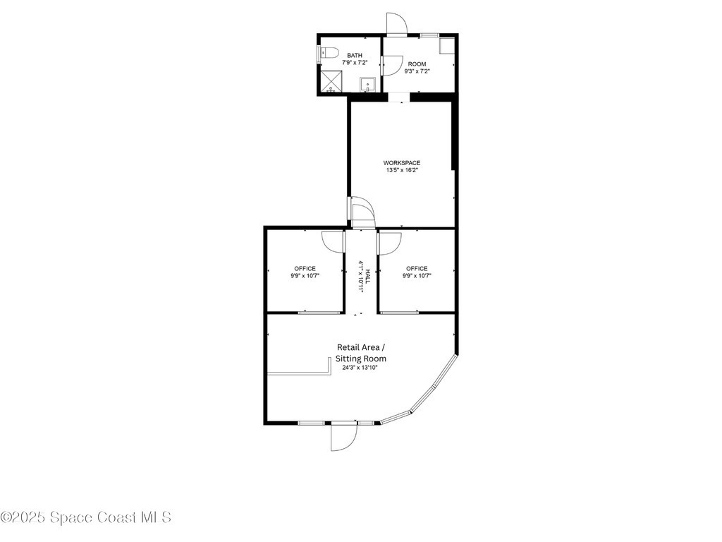
YOUR RENT is your advertising with this High Visible and Super Convenient Location!Watch your business grow when you move to this amazing completely remodeled retail or office space Directly on US-1 in EGAD Next to Mustards & Starbucks just 1 block south ofEau Gallie! This space can be rented furnished or unfurnished and can be rented as-is or floorplan can be opened up and re-configured to your liking! Available as a whole space or Shared work space! Many opportunities for this highly visible location in the center of Melbourne.
3/01/2026
Sold Price: $1,750
Property Listing Details for 1268 N Harbor City Boulevard, Melbourne, FL 32935
Subdivision
Total SqFt.
2,361
Property Sub-Type
Retail
Sale / Lease
Lease
Lot Acres
0.17
County
Brevard
Tax Amount
$6,103 (2023)
Zoning
Commercial
D. Basile Real Estate, LLC lists and sells Real Estate and Luxury homes in Melbourne Beach, Merritt Island, Cocoa Beach, Lansing Island, Tortoise Island, Barefoot Bay, Cape Canaveral, Cocoa, Grant Valkaria, Indialantic, Indian Harbour Beach, Malabar, Melbourne, Palm Bay, Rockledge, Satellite Beach, Titusville, West Melbourne and surrounding areas in Brevard.
This listing is courtesy of Realty World Curri Properties. Property Listing Data contained within the D Basile Real Estate website is the property of Brevard MLS and is provided for consumers looking to purchase real estate. Any other use is prohibited. We are not responsible for errors and omissions on this web site. All information contained herein should be deemed reliable but not guaranteed, all representations are approximate, and individual verification is recommended.
Quick MLS Search
Choose the Area, City, then Type of the property you're looking for

Share us on your network!