Listing Address:
1671 Ollie Street, Cocoa, FL 32922
Price: $224,900
MLS # 1051284
Property Type: Residential
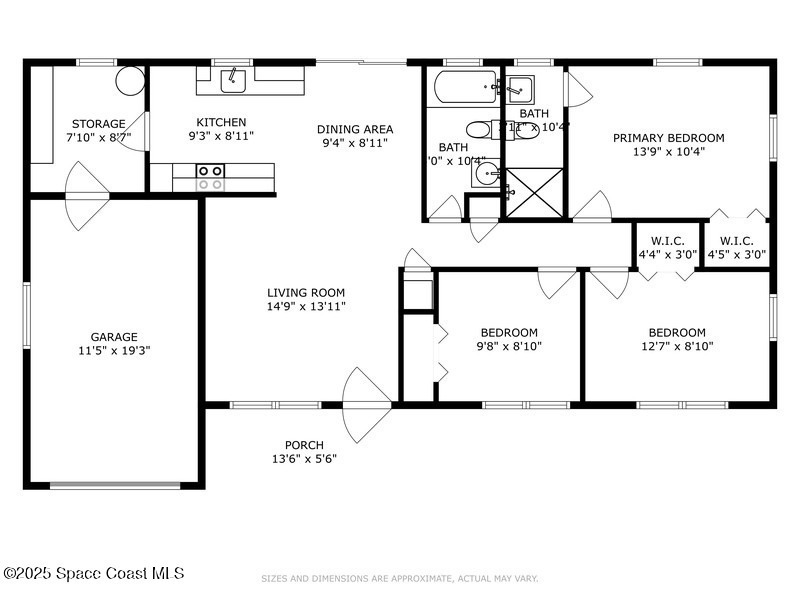
1,080 Total SqFt.
Beds: 3
1,080 Living SqFt.
Baths: 2.00
Year Built: 1963
This property is Closed. Please contact us for similar properties.
Property Description:
**Perfect Starter Home!** This inviting **3-bedroom, 2-bath** home is fully move-in ready, featuring **brand-new appliances**, a dedicated **laundry room**, and an attached **garage** for added convenience and storage.Step into a bright, open layout that's perfect for everyday living. The up dated kitchen makes it an ideal space for relaxing, hosting, or enjoying family time.Outside, you'll love the **spacious backyard**--great for gatherings, play, gardening, or creating your own outdoor retreat.With thoughtful updates and a functional design, this home offers comfort, value, and flexibility. **Perfect for first-time homebuyers**, and the seller is **open to creative financing options**. **Don't miss this opportunity!**
1/28/2026
Sold Price: $220,000
Property Listing Details for 1671 Ollie Street, Cocoa, FL 32922
Exterior Features
Interior Features
Ceiling Fan(s) , Primary Bathroom - Shower No Tub
Equipment / Appliances
Dishwasher , Electric Range , Microwave
Pool
Pool Description
Utilities
Cable Available , Electricity Connected , Water Available
Additional Rooms
Bathroom 1 , Bedroom 1 , Bedroom 2 , Kitchen , Living Room , Primary Bathroom , Primary Bedroom
Waterfront
No
Parking
Garage
Split Floorplan
HOA
HOA Dues
0.00
Construction
Other
Floor
Carpet , Laminate , Tile
Exterior Finish
Roof Type
Shingle
Fireplace
0
County
Brevard
Gated Community
Furnishings
Unfurnished
Home Warranty
Tax Year
2024
Tax Amount
738.99
55+ Community
Subdivision
Listing Status
Closed
Property Status
Home Style
Traditional
Home View
Street
1671 Ollie Street, Cocoa, 32922
Zip Code
D. Basile Real Estate, LLC lists and sells Real Estate and Luxury homes in Melbourne Beach, Merritt Island, Cocoa Beach, Lansing Island, Tortoise Island, Barefoot Bay, Cape Canaveral, Cocoa, Grant Valkaria, Indialantic, Indian Harbour Beach, Malabar, Melbourne, Palm Bay, Rockledge, Satellite Beach, Titusville, West Melbourne and surrounding areas in Brevard.
This listing is courtesy of Coldwell Banker Port St Lucie. Property Listing Data contained within the D Basile Real Estate website is the property of Brevard MLS and is provided for consumers looking to purchase real estate. Any other use is prohibited. We are not responsible for errors and omissions on this web site. All information contained herein should be deemed reliable but not guaranteed, all representations are approximate, and individual verification is recommended.
Quick MLS Search
Choose the Area, City, then Type of the property you're looking for

Share us on your network!