Listing Address:
688 Naples Court, West Melbourne, FL 32904
Price: $438,500
MLS # 1051259
Property Type: Residential
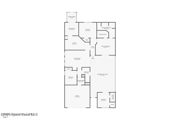
1,763 Total SqFt.
Beds: 4
1,763 Living SqFt.
Baths: 3.00
Year Built: 2001
This property is Active. Please contact us for similar properties.
Property Description:
*****PRICE CHANGE***** Beautiful Gem located in the Active Compass Pointe Community...Pride of ownership in this unique 4bd, 3 bath pool home, sits at the end of a quiet cul-de-sac. This residence also has a separate Guest Suite, providing privacy for your guest . Wood and tile floors thru out. Pool bath, with private court yard pool! Home offers, all modern kitchen appliances with new refrigerator, washer & dryer.Water heater 1 yr, Roof 2023, Solar Electric leased $150.per month. Sellers electric bill is around $60. and keeps going down... Tropical landscaping, plus much more! Explore the active community with superb amenities including heated pool & spa, BBQ area, putting green, Club house for exercising and weekly activities..Just minutes from shopping!!
Property Listing Details for 688 Naples Court, West Melbourne, FL 32904
Exterior Features
Courtyard , Storm Shutters
Interior Features
Breakfast Bar , Breakfast Nook , Ceiling Fan(s) , Eat-in Kitchen , Entrance Foyer , Guest Suite , In-Law Floorplan , Pantry , Primary Bathroom -Tub with Separate Shower , Split Bedrooms , Vaulted Ceiling(s)
Equipment / Appliances
Dishwasher , Disposal , Dryer , Electric Oven , Electric Range , Electric Water Heater , Ice Maker , Microwave , Refrigerator , Washer
Pool
Pool Description
In Ground , Screen Enclosure
Utilities
Cable Available , Electricity Connected , Sewer Connected , Water Connected
Additional Rooms
None
Waterfront
Yes
Water Type
Parking
Garage , Garage Door Opener
Split Floorplan
HOA
HOA Dues
0.00
Construction
Block , Stucco
Floor
Tile , Wood
Exterior Finish
Roof Type
Shingle
Fireplace
0
County
Brevard
Gated Community
Furnishings
Unfurnished
Home Warranty
Tax Year
2022
Tax Amount
1661.69
55+ Community
Subdivision
Listing Status
Active
Property Status
Home Style
Ranch
Home View
Lake , Pond , Pool
Street
688 Naples Court, West Melbourne, 32904
Zip Code
D. Basile Real Estate, LLC lists and sells Real Estate and Luxury homes in Melbourne Beach, Merritt Island, Cocoa Beach, Lansing Island, Tortoise Island, Barefoot Bay, Cape Canaveral, Cocoa, Grant Valkaria, Indialantic, Indian Harbour Beach, Malabar, Melbourne, Palm Bay, Rockledge, Satellite Beach, Titusville, West Melbourne and surrounding areas in Brevard.
This listing is courtesy of Cloud 9 Real Estate Group. Property Listing Data contained within the D Basile Real Estate website is the property of Brevard MLS and is provided for consumers looking to purchase real estate. Any other use is prohibited. We are not responsible for errors and omissions on this web site. All information contained herein should be deemed reliable but not guaranteed, all representations are approximate, and individual verification is recommended.
Quick MLS Search
Choose the Area, City, then Type of the property you're looking for

Share us on your network!