Listing Address:
534 Mimosa Street, Palm Bay, FL 32908
Price: $438,360
MLS # 1048712
Property Type: Residential
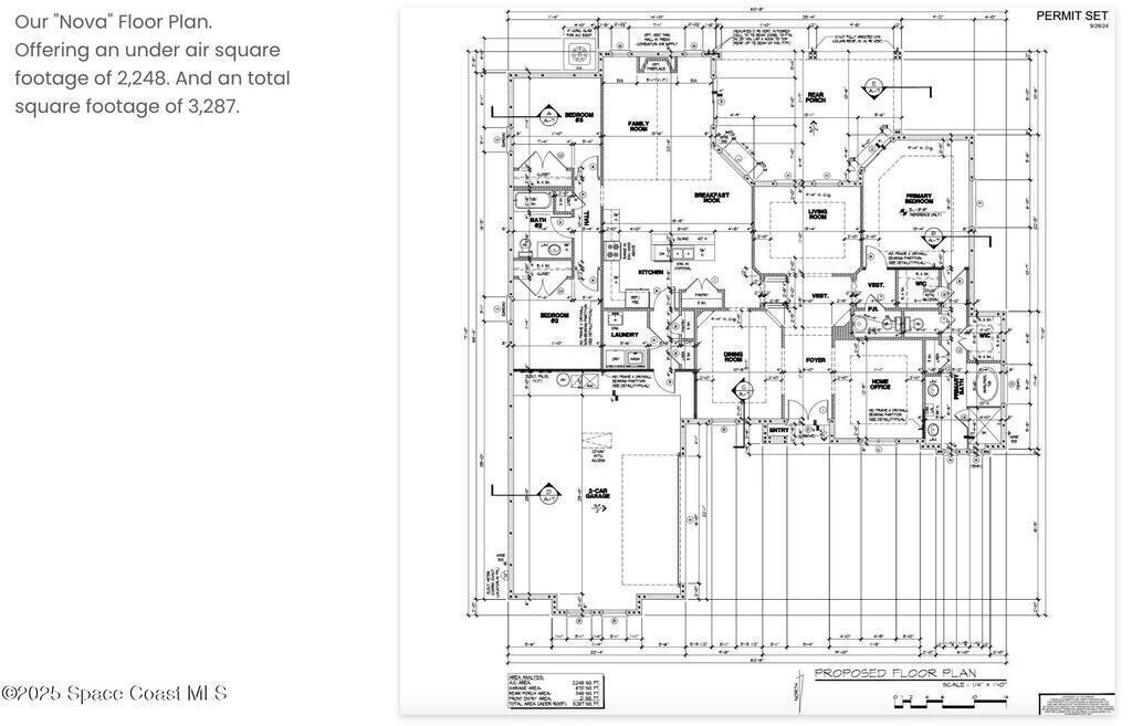
2,248 Total SqFt.
Beds: 4
2,248 Living SqFt.
Baths: 3.00 ½ Baths: 1
Year Built: 2025
This property is Active. Please contact us for similar properties.
Property Description:
* BUYER FINANCING FELL THROUGH * Discover elevated living in the ''Nova,'' a 2,248 sq. ft. luxury residence under construction now. This 4-bed, 2.5-bath home under includes a formal dining room, expansive kitchen, living and family rooms. High-end finishes abound. 10' ceilings throughout, 11' in the tray ceiling, 8' doors, 51/4'' baseboards, quartz countertops, and designer lighting and ceiling fans. Elegant tile graces the main living areas, while plush carpet with upgraded padding adds warmth to bedrooms and the family room. Spa-inspired primary suite features both a free-standing soaking tub and large tiled shower. Oversized garage has 10' ceilings and ample space. Seamless indoor-outdoor living with an oversized porch under truss. Built with impact-rated windows and doors, and backed by a builder's warranty, this home offers enduring quality and timeless appeal. $15,000 flex cash toward closing costs and interest rate buydown. Stop at the model home to learn more.
Property Listing Details for 534 Mimosa Street, Palm Bay, FL 32908
Exterior Features
Impact Windows
Interior Features
Breakfast Nook , Ceiling Fan(s) , Eat-in Kitchen , Entrance Foyer , Kitchen Island , Pantry , Primary Bathroom -Tub with Separate Shower , Split Bedrooms , Vaulted Ceiling(s) , Walk-In Closet(s)
Equipment / Appliances
Dishwasher , Electric Range , Electric Water Heater , Microwave , Refrigerator
Pool
Pool Description
Utilities
Cable Available
Additional Rooms
None
Waterfront
No
Parking
Garage , Garage Door Opener
Split Floorplan
HOA
HOA Dues
0.00
Construction
Block , Concrete , Stone Veneer , Stucco
Floor
Carpet , Tile
Exterior Finish
Roof Type
Fireplace
0
County
Brevard
Gated Community
Furnishings
Unfurnished
Home Warranty
Tax Year
0
Tax Amount
0.00
55+ Community
Subdivision
Listing Status
Active
Property Status
Home Style
Home View
Street
534 Mimosa Street, Palm Bay, 32908
Zip Code
D. Basile Real Estate, LLC lists and sells Real Estate and Luxury homes in Melbourne Beach, Merritt Island, Cocoa Beach, Lansing Island, Tortoise Island, Barefoot Bay, Cape Canaveral, Cocoa, Grant Valkaria, Indialantic, Indian Harbour Beach, Malabar, Melbourne, Palm Bay, Rockledge, Satellite Beach, Titusville, West Melbourne and surrounding areas in Brevard.
This listing is courtesy of Coldwell Banker Realty. Property Listing Data contained within the D Basile Real Estate website is the property of Brevard MLS and is provided for consumers looking to purchase real estate. Any other use is prohibited. We are not responsible for errors and omissions on this web site. All information contained herein should be deemed reliable but not guaranteed, all representations are approximate, and individual verification is recommended.
Quick MLS Search
Choose the Area, City, then Type of the property you're looking for

Share us on your network!