Listing Address:
1095 Country Club Drive, Titusville, FL 32780
Price: $175,000
MLS # 1044869
Property Type: Residential
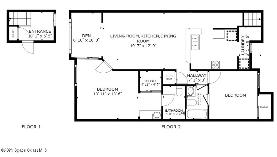
1,010 Total SqFt.
Beds: 2
1,010 Living SqFt.
Baths: 2.00
Year Built: 1987
This property is Active. Please contact us for similar properties.
Property Description:
Welcome to this beautifully maintained 2-bedroom, 2-bathroom condo in the highly sought-after Club Haciendas community, located right on the lush greens of the La Cita Golf Course. This spacious second-floor unit offers over 1,000 square feet of comfortable living with serene views and an open-concept layout. Enjoy a bright and airy living space, a well-appointed kitchen with ample cabinetry, and a private screened-in balcony that overlooks the sparkling community pool--perfect for relaxing with your morning coffee or evening sunsets. The primary suite includes an en-suite bath and generous closet space, and the unit comes fully furnished, making it move-in ready! Residents enjoy access to a well-kept community with beautiful landscaping and a peaceful atmosphere ideal for walking, biking, or simply enjoying the Florida lifestyle. Conveniently located near shopping, dining, historic downtown Titusville.
Property Listing Details for 1095 Country Club Drive, Titusville, FL 32780
Exterior Features
Balcony , Outdoor Kitchen
Interior Features
Breakfast Bar , Ceiling Fan(s) , Entrance Foyer , Split Bedrooms , Vaulted Ceiling(s) , Walk-In Closet(s)
Equipment / Appliances
Dishwasher , Electric Range , Ice Maker , Microwave , Refrigerator , Washer/Dryer Stacked
Pool
Pool Description
Utilities
Cable Connected , Electricity Connected , Sewer Connected , Water Connected
Additional Rooms
None
Waterfront
No
Parking
Unassigned
Split Floorplan
HOA
HOA Dues
0.00
Construction
Frame , Stucco
Floor
Carpet , Tile , Vinyl
Exterior Finish
Roof Type
Fireplace
0
County
Brevard
Gated Community
Furnishings
Furnished
Home Warranty
Tax Year
2024
Tax Amount
419.25
55+ Community
Subdivision
Listing Status
Active
Property Status
Home Style
Contemporary
Home View
Pool
Street
1095 Country Club Drive, Titusville, 32780
Zip Code
D. Basile Real Estate, LLC lists and sells Real Estate and Luxury homes in Melbourne Beach, Merritt Island, Cocoa Beach, Lansing Island, Tortoise Island, Barefoot Bay, Cape Canaveral, Cocoa, Grant Valkaria, Indialantic, Indian Harbour Beach, Malabar, Melbourne, Palm Bay, Rockledge, Satellite Beach, Titusville, West Melbourne and surrounding areas in Brevard.
This listing is courtesy of RE/MAX Aerospace Realty. Property Listing Data contained within the D Basile Real Estate website is the property of Brevard MLS and is provided for consumers looking to purchase real estate. Any other use is prohibited. We are not responsible for errors and omissions on this web site. All information contained herein should be deemed reliable but not guaranteed, all representations are approximate, and individual verification is recommended.
Quick MLS Search
Choose the Area, City, then Type of the property you're looking for

Share us on your network!