Listing Address:
805 & 815 E Fee Avenue, Melbourne, FL 32901
Price: $1,750,000
MLS # 1041661
Property Type: Commercial
This property is Active. Please contact us for similar properties.
Property Description:
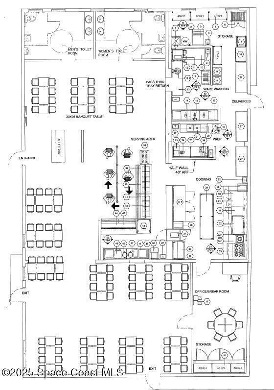
Total of +/- 9,032 SF on est. 1.01 acres. Sale includes 805 Fee which is a +/- 4,982 SF CBS Office Building + 815 Fee which is a +/- 4,050 SF CBS Restaurant/Kitchen. Both buildings are 100% fire sprinklered and are separately metered for City Water/Sewer & FPL Electric. Property is gated/fenced with a total of 34 paved/striped parking spaces. The interior of 805 Fee (office) has a reception/lobby, 7 offices, conference 4 restrooms, storage, 3 showers, and laundry room. 815 Fee (kitchen/restaurant) has piped underground gas, plus a 750 gallon underground grease trap. Remaining kitchen FF&E is negotiable. Property is strategically positioned in the heart of Melbourne, just off of the US1 x 192 intersection. Close proximity to Downtown Melbourne, Holmes Regional Medical Center, the Melbourne Square Mall, and all of the beaches, shopping, and dining the area has to offer. Surrounding employers include the Melbourne International Airport, L3Harris and Northrop Grumman to name a few.
Property Listing Details for 805 & 815 E Fee Avenue, Melbourne, FL 32901
Subdivision
Total SqFt.
9,032
Property Sub-Type
Mixed Use
Sale / Lease
Sale
Lot Acres
1.01
County
Brevard
Tax Amount
$4,208 (2024)
D. Basile Real Estate, LLC lists and sells Real Estate and Luxury homes in Melbourne Beach, Merritt Island, Cocoa Beach, Lansing Island, Tortoise Island, Barefoot Bay, Cape Canaveral, Cocoa, Grant Valkaria, Indialantic, Indian Harbour Beach, Malabar, Melbourne, Palm Bay, Rockledge, Satellite Beach, Titusville, West Melbourne and surrounding areas in Brevard.
This listing is courtesy of The Ullian Realty Corporation. Property Listing Data contained within the D Basile Real Estate website is the property of Brevard MLS and is provided for consumers looking to purchase real estate. Any other use is prohibited. We are not responsible for errors and omissions on this web site. All information contained herein should be deemed reliable but not guaranteed, all representations are approximate, and individual verification is recommended.
Quick MLS Search
Choose the Area, City, then Type of the property you're looking for

Share us on your network!