Listing Address:
140 Warsteiner Way, Melbourne Beach, FL 32951
Price: $669,000
MLS # 1041313
Property Type: Residential
2,216 Total SqFt.
Beds: 3
2,216 Living SqFt.
Baths: 4.00 ½ Baths: 1
Year Built: 2007
This property is Active. Please contact us for similar properties.
Property Description:
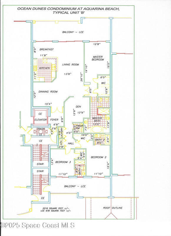
Now's the time to buy OCEAN DUNES' MOST DESIRABLE ''02'' FLOORPLAN at an incredibly low price. This exceptional 3rd floor 3 bedroom/3.5 bath luxury condominium features over 2200 sf of living space w private elevator, high ceilings & 2 spacious PRIVATE balconies w ocean & golf course views. The open floorplan offers an ocean view living room, beautiful kitchen w light wood cabinetry, granite counters & stainless appliances, breakfast nook, formal dining room, 3 ensuite bedrooms plus an extra den or office! 2017 A/C, new Hot Water Heater, 2019 Roof, Storm Shutters. Ocean Dunes Condos features elegant secure lobbies, a gorgeous, heated swimming pool w sundeck, resident grill & firepit, under building parking and ample open parking. Enjoy the dream Florida lifestyle in Aquarina Beach & CC, a gated ocean-to-river community w Oceanfront Clubhouse, Golf, Tennis, River Pier, Fitness, Bar and Grille & more!
Property Listing Details for 140 Warsteiner Way, Melbourne Beach, FL 32951
Exterior Features
Balcony , Storm Shutters
Interior Features
Breakfast Bar , Breakfast Nook , Built-in Features , Ceiling Fan(s) , Open Floorplan , Primary Bathroom -Tub with Separate Shower , Split Bedrooms , Walk-In Closet(s)
Equipment / Appliances
Dishwasher , Disposal , Dryer , Electric Range , Electric Water Heater , Microwave , Refrigerator , Washer
Pool
Pool Description
Utilities
Cable Available , Electricity Connected , Sewer Connected , Water Connected
Additional Rooms
None
Waterfront
No
Parking
Additional Parking , Assigned , Garage , Garage Door Opener , Underground
Split Floorplan
HOA
HOA Dues
0.00
Construction
Concrete , Stucco
Floor
Carpet , Tile
Exterior Finish
Roof Type
Concrete , Membrane
Fireplace
0
County
Brevard
Gated Community
Furnishings
Unfurnished
Home Warranty
Tax Year
2024
Tax Amount
8232.82
55+ Community
Subdivision
Listing Status
Active
Property Status
Home Style
Home View
Golf Course , Ocean , Trees/Woods
Street
140 Warsteiner Way, Melbourne Beach, 32951
Zip Code
D. Basile Real Estate, LLC lists and sells Real Estate and Luxury homes in Melbourne Beach, Merritt Island, Cocoa Beach, Lansing Island, Tortoise Island, Barefoot Bay, Cape Canaveral, Cocoa, Grant Valkaria, Indialantic, Indian Harbour Beach, Malabar, Melbourne, Palm Bay, Rockledge, Satellite Beach, Titusville, West Melbourne and surrounding areas in Brevard.
This listing is courtesy of Dale Sorensen Real Estate Inc.. Property Listing Data contained within the D Basile Real Estate website is the property of Brevard MLS and is provided for consumers looking to purchase real estate. Any other use is prohibited. We are not responsible for errors and omissions on this web site. All information contained herein should be deemed reliable but not guaranteed, all representations are approximate, and individual verification is recommended.
Quick MLS Search
Choose the Area, City, then Type of the property you're looking for

Share us on your network!