Listing Address:
1324 Highway A1a , Satellite Beach, FL 32937
Price: $3,614
MLS # 1028168
Property Type: Commercial
This property is Active. Please contact us for similar properties.
Property Description:
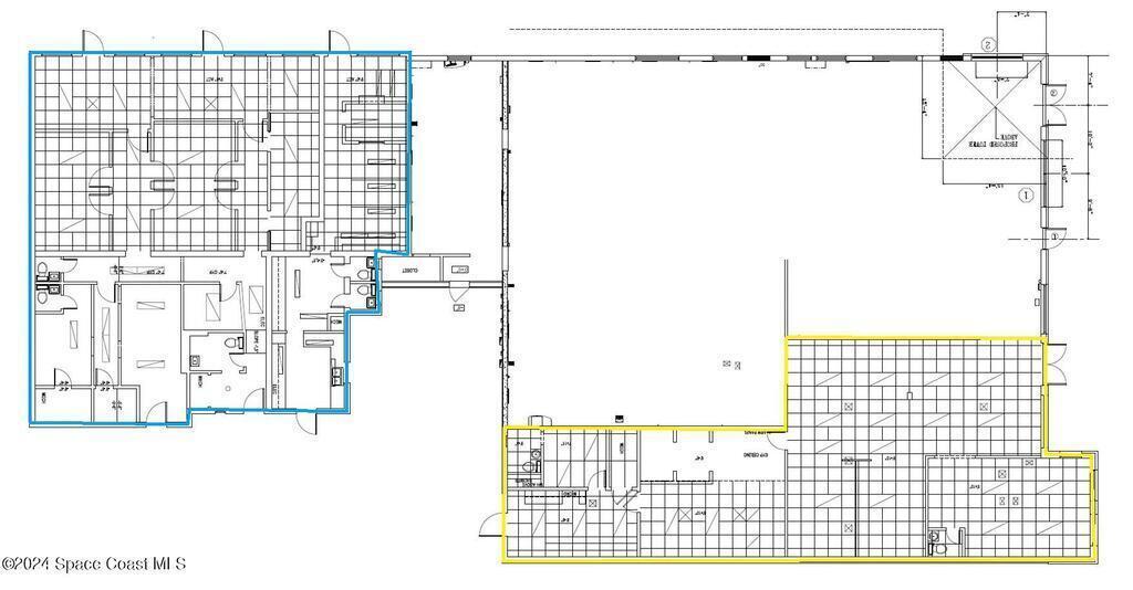
This property offers two available spaces (see floor plan in images):Outlined in Blue, this space is approximately 2,192 sq. ft (divisible)Outlined in Yellow, this space is approximately 1,971 sq. ft.Zoned for commercial use, these spaces are suited for retail or professional services. Build-to-suit options are available, including storefront customization, to meet your business's specific needs. The property enjoys excellent visibility, with more than 29,000 vehicles passing daily on Highway A1A.Located in a convenient commercial corridor, the property is across from Satellite High School and Delaura Middle School, ensuring steady local traffic. It is also less than one mile from a new 27-acre mixed-use development and close to Patrick Space Force Base, providing access to a strong customer base. With an average household income of over $110,000 within a 3-mile radius and over 26,000 residents in the area, this property is well-positioned for businesses.
Property Listing Details for 1324 Highway A1a , Satellite Beach, FL 32937
Subdivision
Total SqFt.
9,550
Property Sub-Type
Retail
Sale / Lease
Lease
Lot Acres
0.72
County
Brevard
Tax Amount
$0 (2023)
D. Basile Real Estate, LLC lists and sells Real Estate and Luxury homes in Melbourne Beach, Merritt Island, Cocoa Beach, Lansing Island, Tortoise Island, Barefoot Bay, Cape Canaveral, Cocoa, Grant Valkaria, Indialantic, Indian Harbour Beach, Malabar, Melbourne, Palm Bay, Rockledge, Satellite Beach, Titusville, West Melbourne and surrounding areas in Brevard.
This listing is courtesy of Reach Commercial Real Estate. Property Listing Data contained within the D Basile Real Estate website is the property of Brevard MLS and is provided for consumers looking to purchase real estate. Any other use is prohibited. We are not responsible for errors and omissions on this web site. All information contained herein should be deemed reliable but not guaranteed, all representations are approximate, and individual verification is recommended.
Quick MLS Search
Choose the Area, City, then Type of the property you're looking for

Share us on your network!