Listing Address:
2290 W Eau Gallie Boulevard, Melbourne, FL 32935
Price: $6,952
MLS # 1005698
Property Type: Commercial
This property is Active. Please contact us for similar properties.
Property Description:
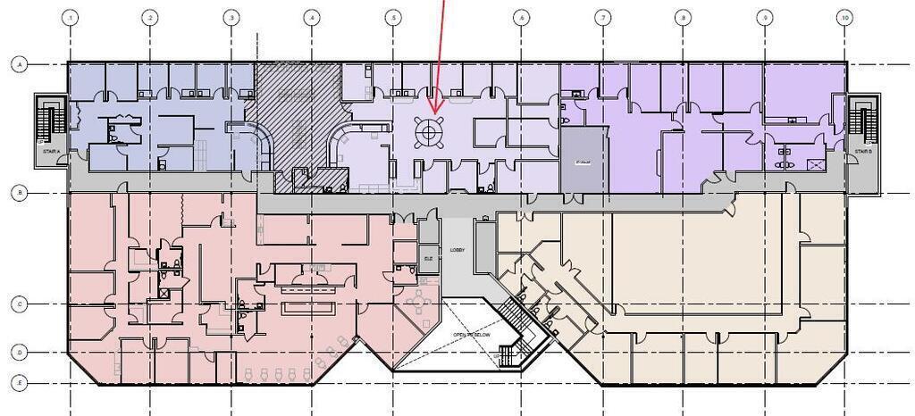
Excellent opportunity to lease a 3,780 RSF Class A medical office in the heart of Melbourne! Interior: Waiting Room, Checkin/Checkout, 5 Exam Rooms, 4 Offices, Lab and a Break Room. Drop ceiling throughout. Lots of windows/sunlight. Unit is 100% fire sprinklered. 2nd floor unit with elevator access. Building conveniently has a covered portico for patient pickup/drop off. Ample parking with 313 paved/striped/lighted common parking spaces. Property is located in the heart of Melbourne approximately halfway between Interstate 95 and US1. Close proximity to the Melbourne International Airport, Downtown Eau Gallie Arts District, Holmes Regional Medical Center, and all of the shopping, dining, education and beaches that the area has to offer. Make this the future home for your business today!
Property Listing Details for 2290 W Eau Gallie Boulevard, Melbourne, FL 32935
Total SqFt.
77,145
Property Sub-Type
Office
Sale / Lease
Lease
Lot Acres
5.70
County
Brevard
Tax Amount
$139,405 (2022)
D. Basile Real Estate, LLC lists and sells Real Estate and Luxury homes in Melbourne Beach, Merritt Island, Cocoa Beach, Lansing Island, Tortoise Island, Barefoot Bay, Cape Canaveral, Cocoa, Grant Valkaria, Indialantic, Indian Harbour Beach, Malabar, Melbourne, Palm Bay, Rockledge, Satellite Beach, Titusville, West Melbourne and surrounding areas in Brevard.
This listing is courtesy of The Ullian Realty Corporation. Property Listing Data contained within the D Basile Real Estate website is the property of Brevard MLS and is provided for consumers looking to purchase real estate. Any other use is prohibited. We are not responsible for errors and omissions on this web site. All information contained herein should be deemed reliable but not guaranteed, all representations are approximate, and individual verification is recommended.
Quick MLS Search
Choose the Area, City, then Type of the property you're looking for

Share us on your network!